過日、母の還暦の祝いに家の図面と模型をプレゼントしました。
現在の家は祖父母と母と叔父と自分が住んでいたので、
もはや一人住まいの母には無駄に大きい家となっており、
諸般の事情もあるため、たまたま空いていた斜向かいの敷地に家を建てるならどんなのがいいか?
と世間話をしていたのがきっかけでした。

まず、還暦過ぎて階段の上り下りはキツイだろうと思い、平屋を考えたのですが、
敷地面積と建蔽率の制約が道を挟んだ隣のブロックよりも20%も厳しいということもあり、
基本的にワンルームとして使うことを想定して設計しました。
部屋を小さく区切っていくと天井の高さと部屋の面積の関係から窮屈に感じやすいからです。

面積的に最も厄介だったのは、ピアノを教えているため、2台分場所を確保しないといけないのに加え、
生徒さんには子供さんが多いため、コンサートなどで見かける2台向かい合わせの配置ができないため、
ピアノだけで4畳半くらいのスペースを取られてしまうことでした。

プライバシーと使い勝手を考慮し、
キッチン以外の水廻りは敷地片側に寄せ寝室のみ仕切れるようにしています。
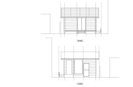
道路に面した北側にはレッスン風景が見えるように大きな嵌め殺しの窓を配置、

反対側には折れ戸の窓を配置し、小さな家が広々と感じられるようにしました。
南側は心地よいテラスにするために、軒を低くし、
北側はレッスン室を広く見せるために軒を少し高くしています。
棟の位置を少し北寄りにし、太陽光パネルを置く場合も考えて南側の屋根面積をできるだけ広く取ってもいます。

母の経済力を考慮し、住宅設備、内外の建具等はすべて既製品、
建具は玄関以外は引戸です。玄関土間に至るまでのアプローチは斜面とし、
床高と土間の高さは5センチ程度の段差に抑えました。
トイレが玄関入ってすぐにあるのは、いくらワンルーム仕様とは言っても、
ピアノを習いにくる生徒さんは、教室から直接入るトイレでは、気持ちよく用も足しにくいのではないかと考えたからです。
施主である母からすれば、少し使いづらい配置ではあると思いますが、そこは我慢してもらいましょう(笑)


外壁は最近あまり新築の住宅では見ませんが下見板張りとなっています。
腐れば私が一肌脱いて補修できるくらいでないと維持できないのと、
高さを抑えた家なので、かわいらしい印象の建物にしたかったからです。
外部のへこみはエコキュート置場です。
カーポートは設置していません。
車は小さい方は母親のですが、
もう一台は生徒さんの親御さんが大きい車を停められるように確認用に配置しました。
パッと見でも弊社の標準仕様とは異なりますし、
ベテランの現場監督の方から見れば突っ込みどころも多々あるとは思いますが、
始業前や終業後にコツコツ既製品のカタログや住宅の納まりの資料等を見ながら計画していったので、大変勉強になりました。
母にプレゼントをあげたのは実に15年ぶりくらいのような気がします。
私自身がもたもたしている内に祖父母が亡くなってしまったので、
架空のプロジェクトとはいえ、一つ生業にまつわるプレゼントができたのはよかったと思います。
ちなみに、どーせ建てるお金はどこからも出てこないとは思っていたのですが、
持っていったその日にどうやら想定していた敷地が売れたらしいという話を母から聞きました。
なくなってしまうとちょっと悔しい気もするものですね(笑)






